












Gallows Hill Artists is a creative studio space for artists. We offer an affordable environment to foster individual creativity and a community of artists to inspire the sharing of ideas with our collective of resident artists.
Our space is housed on the third and fourth floors of a large warehouse located in Salem’s Gallows Hill area at 16 Proctor Street. Just steps from Proctor’s Ledge, this historic location overlooks the site of Salem’s infamous 1692 hanging of 19 innocent people. The warehouse was originally built around 1900 as one of Salem’s great tanneries, The Arthur J Mulholland Company, and even survived the Great Salem Fire of 1914. This complex of buildings is one of the only remaining tannery locations in Salem.
In addition to the Gallows Hill Artist Studios, the complex hosts multiple other businesses and features several creative operations including woodworkers, candle making, furniture restoration, and glass studios.
We offer 26 studio spaces ranging in size from about 175 sf up to 875 sf. The space features ten-foot ceilings and large windows overlooking Gallows Hill Park offering an open and dynamic space to make art.
Studios range in size and configuration. While most studios are enclosed with walls and doors, nine of the studios are open to a common area and shared workspace with walls to delineate each studio on three sides. Modifications will be considered with approval.
The space offers an ample shared common area, restrooms, shared kitchen area, utility sinks, community darkroom, and a rotating exhibition space for artists. Studio Rates include WiFi, utilities, and onsite parking. Gallows Hill Studios are not handicapped accessible, but we do have access to a freight elevator and loading dock.
Each resident artist will also have a portfolio page on this website.
Spaces are dedicated to working visual artists only. We will not accept applications for general business use or storage. While most artistic activities will be considered we cannot approve activities involving any use of flammable gasses, toxic fumes, or techniques that require special ventilation (this includes spray paint). Our facilities are also not able to provide the power and water needed to support ceramics studios.
About Gallows Hill Management
Gallows Hill Artists was founded in 2021 by Salem MA photographer James Bostick. Recognizing the critical need for affordable artist studio space in Salem, Bostick transformed his fine art studio into a community hub for creativity. His vision was to create an environment that fosters individual artistry while building a supportive community of artists.
Bostick also works as a user experience designer, researcher, and technology manager specializing in big data enterprise software platforms. Bostick is an active artist in the Boston area working primarily in studio photography. His work features landscape, still life, and various figure-based subjects including the Salem Arcanum Tarot project. James Bostick is well known in the community through his arts leadership, advocacy, event management, and involvement with the Salem Arts Association, Salem Public Art Commission, and Destination Salem Board of Directors.

Parking lot is available on Proctor St and off Varney St

Gallows Hill Artist Studios is on the third floor

Third Floor Studio Layout (Existing studios. measurements are approximate)

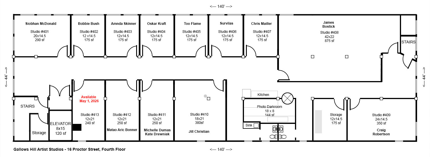
Fourth Floor Studio Layout (NEW studios. measurements are approximate)
Studio Waitlist
All studios at Gallows Hill Artists are currently filled with a community of outstanding artists.
Please fill out the form below to be on the waitlist.
Spaces larger than 200 sf may be shared. Please indicate any studio partners in your application.
When a studio becomes available your application will be reviewed and we’ll schedule a meeting to discuss your studio needs and determine if the opportunity fits our mutual goals. Applications without links to artwork examples or artist background information will not be reviewed.
Studio occupancy requires an annual agreement with a security deposit and first month's rent at time of approval.
Thank you for your application. You've been added to our waitlist and someone will contact you if studio space becomes available. Contact us at studios@gallowshillartists.com with additional questions.
Gallows Hill Artist Studios is an equal opportunity provider of creative space and will not discriminate on the bases of race, color, gender, national origin, age, creed, disability, veteran's status, sexual orientation, gender identity or gender expression
The studio space is managed by JBOSTICK LLC.